Stadtvillen Wohnpark Zwönitz
Stadtvillen Wohnpark Zwönitz
Exklusive Premium-Eigentumswohnungen in Bestlage von Zwönitz – Provisionsfrei & KfW-förderfähig
Das Haus
„Zentrales Wohnen in Zwönitz“
Mit Baubeginn in 2026 entsteht in Zwönitz ein neues Mehrfamilienhaus.
Zum Verkauf stehen 6 anspruchsvolle und ruhige Wohnungen in attraktiver und energieeffizienter Bauweise inklusive zugehöriger Außenstellplätze und
großzügigen Kellerräumen.
Mit der modernen und qualitativ hochwertigen Ausstattung wird Ihnen ein neuer Lebensmittelpunkt eröffnet.
Die begeisternde, zentrale Lage an einer Nebenstraße überzeugt ebenso wie die exklusive Wohnanlage selbst.
„Die Stadtvillen Wohnpark Zwönitz – Ihre Eigentumswohnung im Wohnpark Zwönitz“
Das Projekt „Wohnpark Zwönitz“ beschäftigt sich mit der Errichtung von hochwertigem Wohnraum in einer der schönsten Wohnlagen der Bergstadt.
Mit den Möglichkeiten moderner Bautechnik entstehen energieeffiziente Mehrfamilienhäuser, die Ihnen einen neuen Lebensmittelpunkt eröffnen.
In den Jahren 2021, 2022 und 2024 sind bereits drei beeindruckende Gebäude des „Wohnparks Zwönitz“ fertiggestellt worden. Die attraktiven Wohnungen konnten in kürzester Zeit vermietet werden und bestätigen somit, dass die Nachfrage nach erstklassigem Wohnraum in Zwönitz besonders hoch ist.
Um den vielen Interessenten für Wohneigentum ebenfalls überzeugende Lösungen bieten zu können, steht nun exklusiv innerhalb des Projektes das zweite Mehrfamilienhaus der „Stadtvillen Wohnpark Zwönitz“ zur Verfügung.
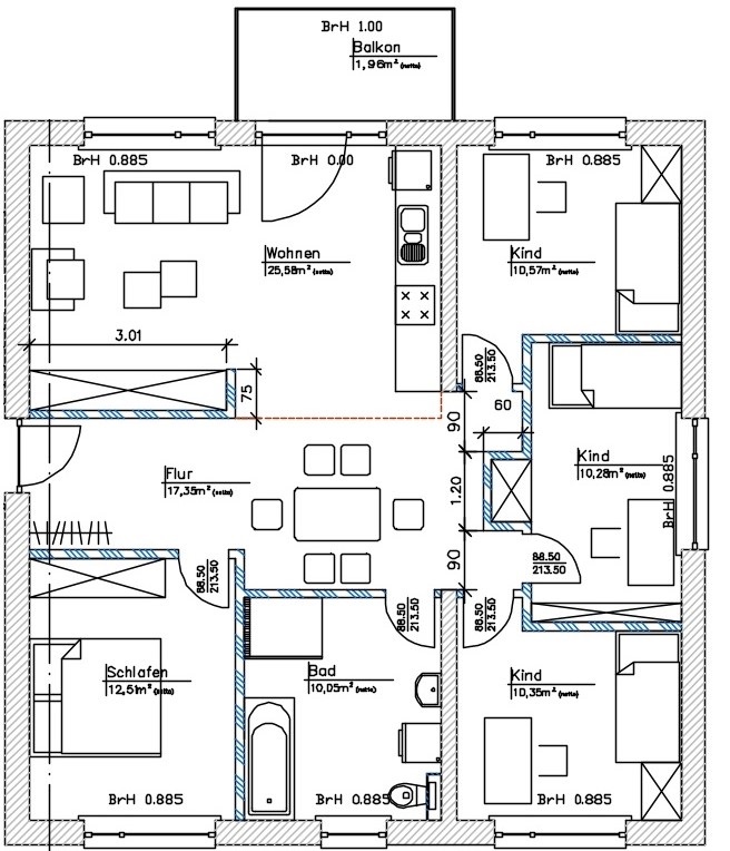
Im Jahr 2026 wird ein großartiges Gebäude errichtet, das den Anforderungen an modernes Wohnen vollkommen entspricht. Es werden sechs ausgezeichnete Eigentumswohnungen verkauft, die mit Wohnflächen zwischen 64 und 99 m² auf die verschiedensten individuellen Bedürfnisse abgestimmt sind.
Ob eine 3-Raum-Wohnung oder eine 5-Raum-Wohnung – sichern Sie sich jetzt Ihren Wohntraum in Zwönitz!
Die hervorragende Ausstattung der Wohnungen lässt keine Wünsche offen. Merkmale wie Fußbodenheizung, Vinylböden oder Fenster mit Dreifachverglasung stehen für Wohnen auf höchstem Niveau in der Bergstadt.
Auch energetisch betrachtet punktet das Projekt mit dem KfW-55-Standard. Die besonders hohe Energieeffizienz hilft Ihnen dabei, das alltägliche Leben bei anhaltend steigenden Energiepreisen bezahlbar zu halten.
On top:
Informieren Sie sich jetzt zu den Fördermöglichkeiten für KfW-Effizienzhäuser, insbesondere zum Kredit Nr. 296, und freuen Sie sich beim Erwerb einer Wohnung in den „Stadtvillen Wohnpark Zwönitz“ über zinsgünstige Darlehen für energieeffizientes Bauen.
Die „Stadtvillen Wohnpark Zwönitz“ – Ihr neues Zuhause!
Die inneren Werte
Dieses Projekt wurde geplant, um den Anforderungen an energieeffizientes und modernes Wohnen gerecht zu werden. Viele Wohnungssuchende verzweifeln auf
Grund des fehlenden Angebotes an passendem Wohnraum.
Das Projekt „Wohnpark Zwönitz“ macht Schluss damit und bietet Traumwohnungen in der beliebten Bergstadt Zwönitz. Und da die Ausstattung eine entscheidende Rolle spielt wurde in der Planung bereits alles berücksichtigt.

Wohnräume*
- viel Tageslicht durch großzügige Fensterflächen
- hochwertige und langlebige Vinylböden
- Innenwände und Decken in glatt Weiß
- Fußbodenheizung mit individueller Steuerung der Räume mittels Raumthermostat
- Innentüren mit robuster CPL- Oberfläche

Bäder*
- Fliesenböden
- Fußbodenheizung mit individueller Steuerung der Räume mittels Raumthermostat
- große Badewanne
- ebenerdige Dusche
- Vorwand- WC
- moderner Waschtisch
- hochwertige Armaturen
- Handtuchheizkörper

Weitere Highlights*
- nachhaltig und umweltfreundlich Nebenkosten sparen durch den Effizienz-Standard KFW 55
- TOP!- Bestlage in Zwönitz
- Fenster mit 3- fach- Verglasung
- hochwärmedämmendes Mauerwerk
- Fernwärmeanschluss
- Balkon
- PKW- Stellplatz zu jeder Wohnung
- Fahrstuhl
- barrierefrei
- Kellerraum zu jeder Wohnung
* Bilder dienen als Beispiele
Lage
Das Objekt befindet sich in bester Lage zentral in Zwönitz. An einer Nebenstraße gelegen, steht der Standort für ruhiges Wohnen in Verbindung mit kurzen Wegen zu Schulen, Kindergärten und Supermärkten der Stadt.
Der „Wohnpark Zwönitz“ – die Top-Adresse für attraktives Wohnen in Zwönitz!
Ob Wanderung oder Fahrradtour, Schulweg oder Einkauf – der Wohnpark Zwönitz ist immer der perfekte Ausgangspunkt. In wenigen Minuten gelangt man auf schöne Wanderwege, die in die zauberhafte Landschaft rund um Zwönitz führen.
Ihre Kinder können sich auf kurze Wege zur Schule oder zum Kindergarten freuen. Denn die Grundschule, das Gymnasium sowie die Kindertageseinrichtungen sind nur wenige Meter entfernt.
Und wenn kurzfristig noch ein kleiner Einkauf ansteht, kann das Auto gern stehen bleiben. Verschiedene Supermärkte sind schnell zu Fuß erreichbar.
Die Stadt Zwönitz selbst ist mit ihren ca. 12.000 Einwohnern einer der beliebtesten Wohnorte im Erzgebirge. Das schnelle Erreichen der Autobahn A72 ist durch die kurze Entfernung von nur 10 km gewährleistet. Auch die öffentlichen Verkehrsmittel sind in wenigen Minuten zu Fuß gut erreichbar.
Darüber hinaus kann die Stadt mit einer Vielzahl an Bildungseinrichtungen punkten. Mit einem Gymnasium, einer Grundschule und einer Mittelschule ist Zwönitz im Bildungswesen bestens aufgestellt. Insgesamt zwei Kindertageseinrichtungen unterstreichen das familienfreundliche Bild der Stadt.
Im belebten Zentrum sind zahlreiche Einzelhändler ansässig. Für die Einkäufe des täglichen Bedarfs gibt es eine große Auswahl an Supermärkten (Edeka, Kaufland, Aldi, Netto).
Über das Jahr hinweg begeistert Zwönitz mit zahlreichen Veranstaltungen und Events. Viele Besucher aus Nah und Fern finden regelmäßig den Weg in die Stadt, um beispielsweise den schönen Weihnachtsmarkt zu besuchen oder bei den „Sommeroldies“ das Tanzbein zu schwingen.
Auch in Sachen Freizeitgestaltung hat Zwönitz einiges zu bieten. Zahlreiche Wander-, Sport- und Ausflugsmöglichkeiten lassen keine Langeweile aufkommen. Über die gut beschilderten Wanderwege mit einer Gesamtstrecke von ca. 170 km rund um Zwönitz kann man die Natur dieser einzigartigen Landschaft in vollen Zügen genießen.
An warmen Sommertagen verspricht das Erlebnisfreibad Zwönitz ein Badevergnügen der besonderen Art. Durch das neu gebaute Hallenbad können „Wasserratten“ auch bei schlechtem Wetter ihrer Leidenschaft nachgehen.
Im Winter lädt die Gegend zu romantischen Spaziergängen oder traumhaften Langlauftouren ein. Gut präparierte Loipen rund um den Greifenbachstauweiher bieten von Zwönitz aus ein Langlaufvergnügen der besonderen Art. Alpin-Skifahrer kommen auf dem nahe gelegenen Skihang des Ziegenbergs mit Liftanlage voll auf ihre Kosten.
Die Angaben und Unterlagen zum Objekt basieren auf Informationen Dritter, die der Firma Steinmacher & Lorenz Immobilien OHG zur Verfügung gestellt wurden. Für die Richtigkeit der Angaben wird keine Haftung übernommen.
Wir bitten Sie zu beachten, dass die in diesem Angebot vorgestellten Inhalte dem Entwurfsstand bei Drucklegung darstellen und nicht verbindlich sind. Grundrisse, Ansichten und Ausstattungen beruhen auf Daten, die im Zuge weiterer Planungsphasen variieren können. Eine Gewähr für die Vollständigkeit der Informationen kann nicht übernommen werden. Verbindlich für die Ausführung ist die Baubeschreibung.
Die Außen- und Innenvisualisierungen sind Projektbilder, Abweichungen sind möglich!
Die Möblierung sowie die Ausstattung sind zum Teil exemplarisch. Die genaue Ausstattung entnehmen Sie bitte der Baubeschreibung.





