Exklusive Reihenhäuser in bester Lage von Zwönitz
Jetzt anfragen!
Wohnpark Zwönitz
Ihr neues Reihenhaus in Zwönitz!
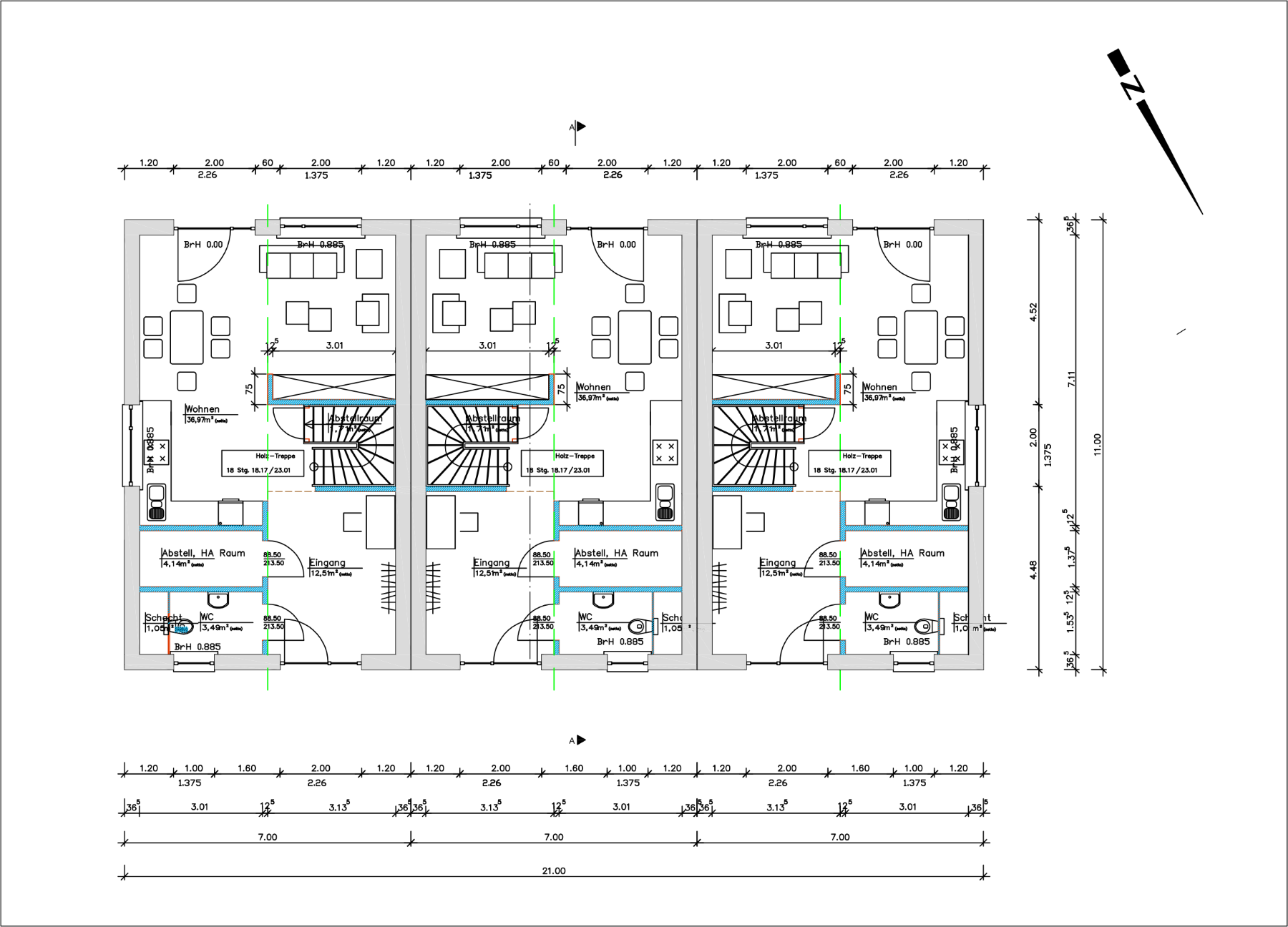
Die Häuser
„Zentrales Wohnen in Zwönitz“
Mit Baubeginn im Jahr 2026 entstehen in Zwönitz drei moderne Reihenhäuser.
Die anspruchsvoll gestalteten und ruhig gelegenen Häuser überzeugen durch eine attraktive und energieeffiziente Bauweise, zugehörige Außenstellplätze und eine traumhafte Raumgestaltung.
Die moderne und hochwertige Ausstattung schafft ein komfortables Zuhause und eröffnet Ihnen einen neuen Lebensmittelpunkt.
Die begeisternde, zentrale Lage in zweiter Reihe überzeugt ebenso wie die exklusive und durchdachte Wohnanlage selbst.
Entspannt durch die Heizperiode in Ihrem KfW 40 Effizienzhaus
Angesichts steigender Energiepreise gewinnt energieeffizienter Wohnraum zunehmend an Bedeutung. Gebäude, die Wärme speichern, den Energieverbrauch senken und dauerhaft niedrige Heizkosten ermöglichen, sind gefragter denn je. Der Wohnpark Zwönitz setzt genau hier an und schafft modernen Wohnraum, der höchsten Ansprüchen an Energieeffizienz und Wohnkomfort gerecht wird.
Mit Baubeginn in 2026 entstehen in zentraler Lage von Zwönitz drei hochwertige Reihenhäuser, die durch ihre durchdachte Architektur, nachhaltige Bauweise und moderne Ausstattung überzeugen. Das Projekt vereint zeitgemäßes Wohnen mit einem ruhigen, angenehmen Wohnumfeld.
Jedes Reihenhaus bietet einen großzügigen 4-Raum-Grundriss mit rund 119 m² Wohnfläche und ist ideal auf die Bedürfnisse von Familien und anspruchsvollen Eigennutzern zugeschnitten. Der hohe energetische Standard sorgt für ein angenehmes Wohnklima und ein gutes Gefühl – auch mit Blick auf die Heizkosten.
Zu jeder Wohneinheit gehören ein PKW-Stellplatz sowie ein Carport-Stellplatz. Ergänzt wird das Angebot durch einen eigenen Gartenanteil mit großzügiger Terrasse.
Die hochwertige Ausstattung unterstreicht den Qualitätsanspruch des Projekts: Fußbodenheizung, moderne Vinylböden, Dreifachverglasung sowie stilvolle Badezimmer mit Badewanne und ebenerdiger Dusche stehen für komfortables Wohnen auf hohem Niveau im Erzgebirge.
Der Wohnpark Zwönitz vereint Energieeffizienz, Qualität und Lage zu einem zukunftssicheren Zuhause.
Die inneren Werte
Sie sind auf der Suche nach modernem Wohnraum in einem energieeffizient errichteten Gebäude und stoßen immer wieder auf ein begrenztes Angebot?
Mit dem Projekt „Wohnpark Zwönitz“ hat Ihre Suche nun ein Ende. Hier entsteht ein zeitgemäßes Zuhause, das höchste Ansprüche an Energieeffizienz, Komfort und Wohnqualität erfüllt.
Auch bei der Ausstattung wurde an alles gedacht – durchdacht, hochwertig und auf ein modernes Lebensgefühl abgestimmt.

Wohnräume
- viel Tageslicht durch großzügige Fensterflächen
- hochwertige und langlebige Vinylböden
- Innenwände und Decken in glatt Weiß mit Mineralanstrich
- Fußbodenheizung mit individueller Steuerung der Räume mittels Raumthermostat
- Innentüren mit robuster CPL- Oberfläche
- Außenjalousien (Raffstore) an allen Wohnungsfenstern
- Hauseingangstür in Alu

Bäder
- viel Tageslicht durch großzügige Fensterflächen
- Fliesenböden
- Fußbodenheizung mit individueller Steuerung der Räume mittels Raumthermostat
- große Badewanne mit beidseitiger Liegefläche
- ebenerdige Dusche
- Vorwand- WC
- moderner Waschtisch
- hochwertige Armaturen
- Handtuchheizkörper

Weitere Highlights
- energieeffiziente, massive Bauweise
- TOP, zentrale Lage in zweiter Reihe in Zwönitz
- Fenster mit 3- fach- Verglasung
- eigener Garten
- Terrasse
- separater Abstellraum
- separater Außenstellplatz
- separates Carport
- Gemeinschaftsantennenanlage
- Fernwärmeanschluss
Lage
Das Objekt befindet sich in bester Lage zentral in Zwönitz.
In zweiter Reihe errichtet steht der Standort für ruhiges Wohnen in Verbindung mit den kurzen Wegen zu den Schulen, Kindergärten und Supermärkten der Stadt. „Wohnpark Zwönitz“, die Top- Adresse für attraktives Wohnen in Zwönitz!
Ob Wanderung oder Fahrradtour, Schulweg oder Einkauf, Ihr neues Heim ist immer der perfekte Ausgangspunkt! In wenigen Minuten gelangt man auf schöne Wanderwege, welche in die zauberhafte Landschaft rund um Zwönitz führen.
Ihre Kinder können sich auf kurze Wege zur Schule oder zum Kindergarten freuen. Denn die Grundschule, das Gymnasium sowie die Kindertageseinrichtungen sind nur wenige Meter entfernt gelegen.
Und wenn man kurzfristig noch einen kleinen Einkauf machen möchte, dann kann das Auto gern stehen bleiben. Denn verschiedene Supermärkte sind schnell zu Fuß erreichbar.
Die Stadt Zwönitz selbst ist mit ihren ca. 12.000 Einwohnern einer der beliebtesten Wohnorte im Erzgebirge.
Das schnelle erreichen der Autobahn A72 ist durch die kurze Entfernung von nur 10 km gewährleistet.
Die öffentlichen Verkehrsmittel sind in wenigen Minuten zu Fuß gut erreichbar.
Desweiteren kann die Stadt mit einer Vielzahl an Schulen punkten. Mit einem Gymnasium, einer Grundschule und einer Mittelschule ist Zwönitz im Bildungswesen bestens aufgestellt.
Insgesamt 2 Kindertageseinrichtungen bestätigen das familienfreundliche Bild der Stadt.
Im belebten Zentrum sind eine Vielzahl an Einzelhändlern ansässig.
Für die Einkäufe des täglichen Bedarfs gibt es eine große Auswahl an Supermärkten (Edeka, Kaufland, Aldi, Netto).
Über das Jahr hinweg begeistert Zwönitz mit zahlreichen Veranstaltungen und Events.
Viele Besucher aus Nah und Fern finden regelmäßig den Weg in die Stadt, um zum Beispiel den schönen Weihnachtsmarkt zu besuchen oder bei den „Sommeroldies“ das Tanzbein zu schwingen.
Auch in Sachen Freizeitgestaltung hat Zwönitz Einiges zu bieten.
Zahlreiche Wander-, Sport- und Ausflugsmöglichkeiten lassen keine lange Weile aufkommen. Über die gut beschilderten Wanderwege, welche mit einer Gesamtstrecke von ca. 170 km rund um Zwönitz verlaufen, kann man die Natur dieser einzigartigen Landschaft in vollen Zügen genießen.
An warmen Sommertagen verspricht das Erlebnis-Freibad Zwönitz ein Badevergnügen der besonderen Art. Durch das neu gebaute Hallenbad können „Wasserratten“ auch bei schlechtem Wetter ihrer Leidenschaft nachgehen.
Im Winter lädt die Gegend zu romantischen Winterspaziergängen oder traumhaften Langlauftouren ein. Gut präparierte Loipen rund um den Greifenbachstauweiher bieten von Zwönitz aus ein Langlaufvergnügen der besonderen Art.
Alpin-Ski-Freunde kommen auf dem nah gelegenen Ski-Hang des Ziegenbergs mit Liftanlage voll auf ihre Kosten.
Unsere Preisliste
| Haus | Wohnfläche | Zimmer | PKW Stellplatz | Carport | Kaufpreis |
|---|---|---|---|---|---|
| Haus 1 (RESERVIERT) | 119,07 m² | 4 | 1 | 1 | 299.550 € |
| Haus 2 | 119,07 m² | 4 | 1 | 1 | 289.550 € |
| Haus 3 (RESERVIERT) | 119,07 m² | 4 | 1 | 1 | 299.550 € |
Die Angaben und Unterlagen zum Objekt basieren auf Informationen Dritter, die der Firma Steinmacher & Lorenz Immobilien OHG zur Verfügung gestellt wurden. Für die Richtigkeit der Angaben wird keine Haftung übernommen.
Wir bitten Sie zu beachten, dass die in diesem Angebot vorgestellten Inhalte dem Entwurfsstand bei Drucklegung darstellen und nicht verbindlich sind. Grundrisse, Ansichten und Ausstattungen beruhen auf Daten, die im Zuge weiterer Planungsphasen variieren können. Eine Gewähr für die Vollständigkeit der Informationen kann nicht übernommen werden. Verbindlich für die Ausführung ist die Baubeschreibung.
Die Außen- und Innenvisualisierungen sind Projektbilder, Abweichungen sind möglich!
Die Möblierung sowie die Ausstattung sind zum Teil exemplarisch. Die genaue Ausstattung entnehmen Sie bitte der Baubeschreibung.
Sie möchten weitere Informationen zu dem Projekt? Zögern Sie nicht uns zu kontaktieren. Geben Sie uns wenige Informationen und wir melden uns zeitnah bei Ihnen.




